INTRODUCING the Ladish “G2 Series” – Gen2 Chlorine Service High Performance Ball Valves
DOWNLOAD THE FULL BROCHURE HERE
Ladish is a U.S. (Houston) based manufacturer of Ball, Gate, Globe and Check valves for Critical and Severe Service. Our specialty is low emission, carbon steel, stainless steel and high alloy valves for toxic/corrosive service. Our Low-E Ball valves are supplied with dual low emissions packing sets and seals that meet requirements of ISO-15848-1, API 641 and TA Luft (per VD12440), as well as being compliant with API 608 (Ball Valve Standard) and API 607 (Fire Safe). The valves are designed to ANSI/ASME B16.34 standards and meet ASME B16.10 Face-to-Face requirements, as well as all having integral ISO mounting pads for actuators or gearboxes when needed. ALL Ladish Ball Valves are manufactured and tested in our shops in Houston Texas under our ISO 9001:2008 Certification.
Specifically for Chlorine service, Ladish manufactures ball valves in compliance with The Chlorine Institute Pamphlet 6. Some features of these valves are:
• Fully API 608 Compliant
• Blowout-proof stems
• Fully Welded Extended Bonnets when required (NOT Bolted)
• Live Loaded Adjustable Packing
• Anti-Static Devices per API 608
• All Wetted parts suitable for Chlorine Service
• PTFE (Primary) with Graphite (Secondary) Body Seals
• Dual Gland Packing. Either with Primary PTFE and secondary Graphoil for fire safety, or dual PTFE. (Graphoil required for fire safe)
• Tested to API 598 with Zero Leakage Allowed
• Fully Cleaned for Chlorine Service and heat dried after Testing to meet the requirements of Chlorine Institute Pamphlet 6
• Sealed and Packaged to prevent moisture intrusion prior to shipping
• Tagged for “Chlorine Service – Cleaned and Dried”
• Valve Seating: Standard is our molecularly enhanced PTFE (TFM), with re-enforced TFM, Carbon Graphite and Metal Seating available (click here for more information on Ladish Metal Seated Ball Valves)
Ladish G2 Chlorine Service Ball Valve Applications
• Chlorine
• Anhydrous HCL
• Nitric Acid
• Phosgene
• Isocyanates
Chlorine Service Valve Design Features
Engineered for performance & reliability in the most hazardous industrial processes. Ladish produces all valves in conformance with API Q1 Quality System. The Houston manufacturing facility maintains an ISO 9001 certified quality system and an internal database for trace-ability on all valves.

Oxidizer / Acid Service Valves
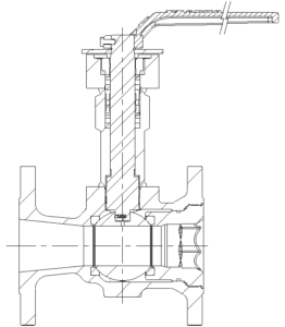
Bonnet Types
Ladish offers both low-profile bonnets with Dual (PTFE / Graphite) Low Emission packing
sets as well as Extended Bonnet. In the extended bonnet style, Ladish could supply
these valves with internal Lantern Rings and “leak-off / bleed” ports on the bonnet as
required. An additional option on the Low Profile bonnets is a bolt-on stem extension
should this be required for valves with insulation. All valves feature Live Loaded Dual
(PTFE/Graphite) Packing. Self-relieving seats are standard. Vented ball optional.
EXTENDED BONNET LOW PROFILE BONNET
Product Range
For parts, materials & ordering information, click here.